• простота монтажа установки;
• стойкость к ветровой нагрузке;
• устойчивость к воздействию ультрафиолетовых лучей и атмосферных осадков;
• отсутствие подверженности коррозии;
• создание минимального количества помех сети. Материал конструкции – алюминий. Участок изоляции конструкции выполнен из усиленного стекловолокном пластика. Нижний вывод мачты обеспечивает опорное крепление к поверхности строения. При монтаже должен соблюдаться разделительный интервал, в основном при наличии токопроводящего продолжения. При отсутствии токопроводящих стержней установка производится на наиболее близком по возможности расстоянии от объекта защиты. Угол защиты зависит от класса.
Мачта молниеприемная isFang 101 3B-7000 OBO 5402876 представляет собой надежный и долговечный компонент системы внешней молниезащиты. Изделие изготовлено из высококачественной оцинкованной стали, что обеспечивает превосходную коррозионную стойкость и устойчивость к агрессивным воздействиям окружающей среды.
Основные характеристики:
- Материал: Оцинкованная сталь
- Диаметр: 33.7 мм
- Длина: 7000 мм
- Артикул производителя: 5402876
Сфера применения:
Мачта предназначена для монтажа на кровлях и других конструкциях зданий и сооружений для выполнения функции молниеприемника. Она эффективно перехватывает прямые удары молнии, обеспечивая безопасный отвод тока в систему заземления. Рекомендуется для использования в составе комплексных систем молниезащиты промышленных объектов, коммерческих зданий, жилых домов и других сооружений, требующих защиты от грозовых перенапряжений в соответствии с требованиями актуальных нормативных документов.
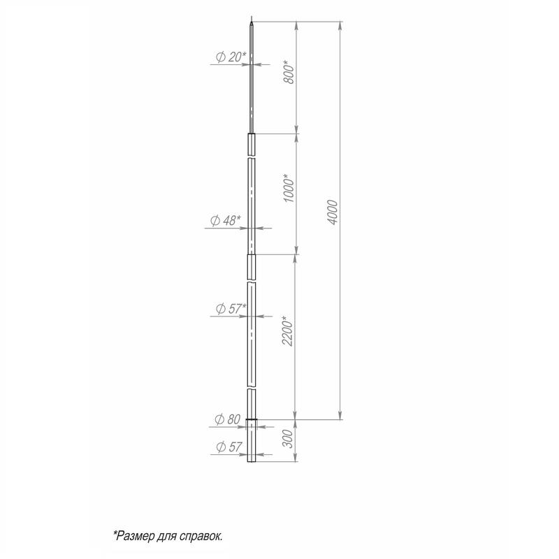
• длина — 4м;
• длина первой части — 2м;
• длина второй и третьей части — 1м;
• диаметр составляющих частей — 40/16/10мм;
• вес 100шт. — 400кг;
• количество в упаковке — 1.
